NOS ATELIERS PRIVATIFS
(actuellement disponibles)

Photos

PHOTOS

ATELIER G045

Plan de l’atelier G045 (surfaces indicatives)

SAS matières (avec chambre froide en face)

Entrées matières (gauche) et personnel (droite) 

Chambre froide (froid positif)

SAS hygiène (personnel)

Zone de préparation/transformation

Zone de stockage partagée

Chambre froide partagé

Quai extérieur du pôle de transformation

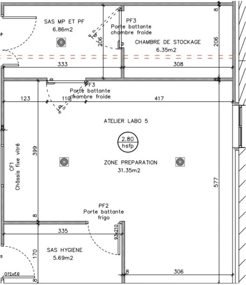
ATELIER G054

Plan de l’atelier G054 (surfaces indicatives)

SAS matières (avec chambre froide à droite)

Entrées matières (gauche) et personnel (droite) 

Chambre froide (froid positif)

SAS hygiène (personnel)

Zone de préparation/transformation n°1

Zone de préparation/transformation n°2

Zone de stockage partagée

Chambre froide partagé

Quai extérieur du pôle de transformation

Contacts

CONTACTS

Accueil du Marché Gare

✆ Telephone: +33 (0)4 67 92 29 60

✉︎ Mail: somimon@mercadis.net

Laurent FOURCADE

✆ Telephone: +33 (0)6 32 05 45 87 

✉︎ Mail: l.fourcade@mercadis.net

Edouard TRUCHELUT

✆ Telephone: +33 (0)6 77 21 76 98 

✉︎ Mail: e.truchelut@mercadis.net

Le MIN – Marché Gare Montpellier est un acteur incontournable de l’activité alimentaire à Montpellier. Situé au niveau des principaux nœuds de communication du sud de la métropole (A9 et A709 – quartier Près d’Arènes), il regroupe les activités d’entreposage, de négoce et de distribution d’un grand nombre de produits alimentaires, dont une part importante d’origine locale.
Un pôle de transformation, dédié à la transformation des matières premières, regroupe depuis 2016 une dizaine d’entreprise de transformation, de la découpe de viande à la légumerie, en passant par la fabrication de tofu.
Dans un contexte de demande supérieure à l’offre existante en locaux de transformation alimentaire, le Marché Gare de Montpellier a inauguré fin 2024 de nouveaux ateliers au sein d’un bâtiment spécialement dédié à la transformation.